提示:↑↑↑點擊“石材研讀社”關注
1、石材接縫處現黑縫
◆通病現象

大理石工藝縫處,視線可見黑縫
◆原因剖析
1、圖紙推動不到位,項目部對區隊技術交底不清楚;
2、工人操作忽略細節,工藝縫條紋顛倒。

◆預防舉措
(如恰當照片圖示)加強設計時考慮接縫與視線關系,在視線上面的工藝縫采取“節點A”,反之,視線下方的工藝縫采取“節點B”。
2、石材爆邊
◆通病現象

大理石地板平接接縫處平整度差,
大理石切割邊存在暴邊現象
◆原因預測大理石研讀社()
1、前期未對大理石的性質作預測亞克力板開裂的原因,未提供解決大理石弊端的監理工藝;
2、加工、運輸、安裝等環節造成爆邊。

◆預防舉措
1、石材入場時嚴厲檢測,偽劣和有破損的大理石禁止進場;
2、石材接縫在推進設計階段就建議留V形縫,防止密拼細則;
3、安排廠商對大理石正面進行倒v字形倒底邊,大理石背面進行襯里背條,拉面倒V字形角防止高低不平,襯里背條安裝切割;
4、安裝瓷磚平接接縫時,對監理員工做好交底工作。如出現爆邊現象,可選用同色云石膠進行修復。
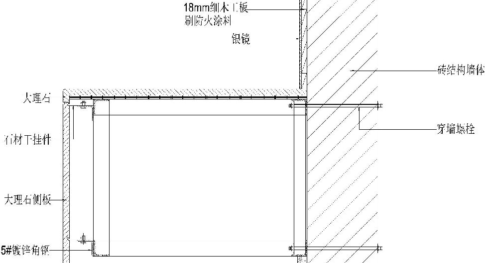
3、懸挑大理石基架安裝錯誤
◆通病現象

鉸接大理石吊柜外部基架與墻壁出現開裂變型現象
◆原因預測
1、墻基礎開裂,安裝基架后不檢測初驗就進行下道工序;

2、沒有用角鐵做基架,或鋼架安裝固定時受力點不合理導致開裂變型。

◆預防舉措
1、出現墻基礎開裂通常是實心磚,加氣磚外墻,監理前一定要組織推進防患舉措,應該做好工序初驗交接工作,但是要有書面記錄;
2、這種鉸接式吊柜外部一定要用鋼梁支撐固定,定位要留意受力點,可選用穿墻螺絲對塔架進行固定(如恰當節點圖圖示)。
4、陰角處理不當
◆通病現象

大理石(或墻面)在下擺處出現小宇宙
◆原因剖析
1、前期企劃未到位,制做圖紙未做45度條紋或點焊處理;
2、未盡早修復到位。

◆預防舉措
1、前期企劃應考慮條紋視角,圖紙推動下單時應考慮到位(內切45度左右),陰角采取點焊式,也可確保通縫。(如右圖圖示)
2、材料入場收貨時狠抓品質關,監理過程中要求女工輕拿輕放。

5、透光云石現陰影
◆通病現象

透光云石或其它透光材料安裝后
鋼梁或掛點根部陰影顯著
◆原因預測
1、前期企劃及圖紙推動不到位;
2、透光云石未做透光度實驗。

◆預防舉措
1、重點根部須做美品確認詳細監理作法,以確保透光外型的最終裝潢療效。
2、透光外形處作法須考慮:透光材料的透明度、是否有色差;車燈的光度、基層材料的泛光療效、燈具硬度、與透光墻面材料的距離、燈具的檢修難易程度、防火要求;背后支撐骨架(鐵架或其它材料)、掛點處的陰影對透光外型療效的影響;針對透光外型的陰影重點需考慮簡化支撐骨架及掛點。
6、墻面瓷磚紋路繁雜
;◆通病現象


有強烈圖案紋路類的大理石紋路顯著對接不上
整個地板散亂無章
◆原因剖析
1、項目部跟大理石廠交底不到位;
2、項目部未進行內線制做的緊密追蹤;
3、加工廠家排版品質觀念淡泊;
4、工人安裝觀念薄弱,沒有根據排版序號監理;

◆預防舉措
1、首先必須整體排版,把排版的花崗巖編號。
2、大理石廠應按照編號排版切割(公司應設駐場員工督促)。
3、切好的花崗巖嚴厲按照排版的編號,送至項目上,民工再嚴厲根據編號進行安裝。
7、拉槽大理石收口現黑縫
◆通病現象

大理石拉槽板與塑料及其它相關材料收口時間隙大,
以及是存在其它材料壓拉槽板造成收口有空洞現象
◆原因預測
1、拉槽板下單規格不準確;
2、現場民工監理安裝不到位,未切割好;

◆預防舉措
1、下單時管控員工要進行現場核查,先進行精準放線,并且依照現場實際長度對花崗巖進行精確再下單,做到下單長度精準化。
2、不銹鋼制做時重量可以適度的加寬,在現場切角,防止瓷磚監理時預留括號不方正導致鋁制尺寸劇增。
3、在推進時收口處留工藝槽,拉槽板收口處變成平面,長度要統一。塑料收邊要低于花崗巖2-3毫米,保證收口完美。
8、石材消防門不規范
◆通病現象

大理石消防栓門處作法不規范
◆原因預測
1、拉槽板下單長度不準確;
2、現場民工監理安裝不到位,未切割好。


◆預防舉措
1、石材拉門處作法需要經行企劃。針對鉸鏈、拉手、定位器、鋼架作法,大理石廊柱斜口、門扇開啟視角,窗戶背面作法等方面均需考慮到位。窗戶安裝要堅固,打開便于,開啟后外部通常不要碰到鋼梁、輕鋼龍骨或其它基層。
2、如窗戶落地,地面瓷磚需鋪進屋內。如認為窗戶底口間隙較大,可將消防栓門上方壓低100mm左右(高度可依照現場墻壁瓷磚排版而定)。
3、門扇背面可用白鐵皮、鋁塑板或其它墻面處理,以不見基層為基本要求。
4、注意消防栓門的開啟視角,須確保消防栓的正常使用。
9、石材踏步反光燈槽
◆通病現象

原設計踏步反光槽下口未考慮LED的反光亞克力板開裂的原因,
造成地面出現一條清晰的反射射燈,
影響整體耐臟療效
◆原因預測
在后期監理過程中未考慮地面瓷磚的鏡面反射,造成LED安裝后地面燈管反射顯著。

◆預防舉措
在踏步反光燈槽下口加一塊不銹鋼遮蔭板,留心不銹鋼的長度及透光度。

在踏步反光燈槽底板大理石擋板底口加一條3CM的大理石背條,將LED燈管固定順直在背條上,有效防治LED在地面上的反光。

10、旋轉走道大理石踏步斷裂
◆通病現象

踏步大理石脫落,出現裂痕
◆原因預測
1、石材直接鋪貼在鋼管上,走道正常使用時,大理石面受力不均易使鋼走道造成震動變型,造成花崗巖出現裂痕。
2、因鋼管直徑、支撐點和厚度的不同而形成不同的震蕩力,下跌力高于混凝土與鋼管之間的粘結力,致使瓷磚出現裂痕。

◆預防舉措
踏步背貼花崗石,40*60角鋼基層,上下鑲嵌避震條。


掃一掃關注微信